CHARLES PICTET BAPTISTE BROILLET ARCHITECTES ASSOCIÉS

SÉLECTION 342

  

  

  

  

  

  

  

  

  

  

  

  

  

 
 
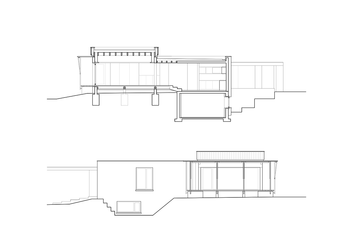
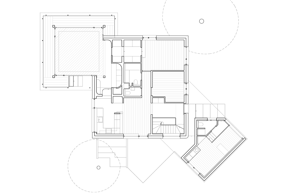
342 / Transformation d'une maison à Collonge-Bellerive
Réalisation
Genève
Transformation et agrandissement d'une villa à Collonge-Bellerive

Photographies Dylan Perrenoud
En hautSélection